内容提要:自20世纪90年代西藏阿里地区的考古工作开展以来,相关的成果渐为学界所知,但是有关阿里晚期壁画的研究成果相对较少。2018年故宫博物院藏传佛教文物研究所开始对阿里地区的壁画遗存进行综合考察,本文即是成果之一。本文着重探讨了皮央石窟IV区32窟(护法殿)壁画的图像内容、时代、艺术风格及所属教派,认为此窟壁画以萨迦派宝帐护法为主题,其绘制年代在16世纪晚期至17世纪初之间,具有藏中地区的艺术风格,反映出萨迦俄派在西藏西部具有较大的影响力。
关键词:皮央石窟 护法殿 宝帐护法 萨迦俄派 石窟寺壁画
一、历史背景与学术回顾
东嘎·皮央石窟遗址位于西藏西部阿里札达县以东约30公里的一条东西长约3公里的河谷中,皮央村在西,东嘎村在东,两个遗址均属札布让区东嘎乡,乡政府所在地是东嘎村。这里海拔约4030-
4120米,北纬31°40′-31°41′,周围散布着佛教石窟、地面佛寺、佛塔等遗迹,也有古代墓葬、村落遗址、古代岩画等考古遗存〔图一〕。
〔图一〕 皮央石窟外景
有关遗址的历史背景和考古研究现状在《皮央·东嘎遗址考古报告》(下文简称“《考古报告》”)有详细介绍,下面仅摘录与皮央石窟相关的一些内容。
自9世纪吐蕃王朝崩溃以后,吐蕃王族后裔一支逃至阿里,建立了地方政权,其中以象泉河为中心建立的古格王国即囊括两个石窟群所在地。古格国王意希沃(Ye shes 'od, 约10-11世纪)早期修建的八座寺庙中就有皮央寺(Phyi dbang dgon),据说始建于996年,到11世纪又重新改建和扩建,主持人是Devaraja。可见从古格王国早期开始,以东嘎·皮央为中心的区域就已经成为重要的佛教中心。
约12世纪,古格王朝内部权力斗争,导致王朝政治权力分裂,东嘎·皮央成为另一个重要的政治中心,这种现象大约延续到14世纪。
15世纪古格格鲁派高僧阿旺扎巴(Ngag dbang grags pa)来到阿里传法,曾在皮央、东嘎住锡,并在东嘎寺举行过大型法事活动。足见当时两寺所在仍然保持佛教中心的地位。直到1630年,拉达克军队攻破古格王都,王国消失,两个石窟群也渐废弃。
20世纪早期就有外国学者到此造访,包括意大利著名藏学家图齐(Giuseppe Tucci)。他在1935年的藏西考察中,曾于8月23-25日造访过东嘎、皮央石窟,拍摄了寺庙、石窟寺以及保存文物的照片。他对于寺庙与石窟的装饰,大量的木、泥、铜造像以及丰富的题记,赞不绝口。
1992年6月,在藏区文物普查中,由西藏自治区文物管理委员会与四川大学考古专业组成的调查分队,在西藏西部阿里高原发现了几处佛教石窟遗迹,其中位于札达县境内的东嘎、皮央村的石窟群规模较大,因两村相距不远,故命名为“东嘎-皮央石窟”。调查队于1994年发表了东嘎1-3窟,皮央79、351等窟的初步调查报告。
1993年9月奥地利维也纳大学-意大利中远东所(University of Vienna-IsMEO)与西藏社科院一起对东嘎、皮央石窟进行了联合考察。现在只有部分资料发表出来,且限于当时的条件,似乎只做了部分拍摄。
1994年7-8月西藏自治区文物管理委员会与四川大学考古专业联合组队对皮央、东嘎遗址作了较为全面的调查与勘测,对石窟作了系统的统计、编号,并选取各类典型石窟作了测绘、记录,还对遗址内的地面佛寺建筑遗迹、佛塔遗迹做了初步调查记录,同时在象泉河南北两岸开展了调查,新发现吉日、岗察等处石窟地点。
1997年发表的一份简报将1992、1994年两次考古调查的成果公布于众。作者对于整个皮央石窟的断代给出了一个基本判断:早期石窟的上限在11-12世纪,晚期石窟的年代在13-15世纪间。主要理由是:1.后弘期祖师传承像出现,如I区351窟出现了噶当派祖师像,IV区32窟(即护法殿)出现了萨迦派五祖中的贡嘎宁波(1092-1158年)、扎巴坚赞(1147-1261年)、萨班·贡嘎坚赞(1182-1251年);2.人物服饰发生了明显变化,不见早期三角形大翻领长袍,而流行对襟式(有的带披肩)或小领长袍;3.早期壁画的晕染法已经被单线平涂画派取代,以红、黄、绿等为主调。而且壁画中亦未见到宗喀巴大师像,所以其下限可能晚不过16世纪。
1996、1997、1999、2001年以来,联合调查队连续开展了在两处石窟的田野调查和考古发掘工作,相对而言,考古发现较为丰富,对于皮央石窟寺本身的调查并没有很大的进展,这种状况一直延续到今天。
我们从《考古报告》中得知,皮央遗址区以皮央村为中心,位于整个遗址的西部,其范围南北最长约1300米,东西最宽约1000米。根据遗存类别及分布范围,共分为三个遗迹区:皮央村遗址区、格林塘遗址区、萨松塘遗址区〔图二〕。皮央村遗址区主要分布有石窟群、佛寺建筑、土石佛塔等佛教文化遗迹,可以分为四个小区〔图三〕。而本文所要讨论的护法殿位于皮央村遗址IV区32窟。
〔图二〕皮央遗址遗迹分布图(采自《考古报告》页9)
〔图三〕皮央村遗迹石窟分布图(原图采自《考古报告》页24, 略作修改)
此外,皮央村遗址区IV区发现的佛寺遗迹分布有“拉布让孜”(高僧住宅)、杜康大殿(集会殿)、塔群、扎仓(僧舍)、仓库杂房等建筑。这几组建筑均依山势而建,其中“拉布让孜”建在最北端的山丘顶部,与IV区32号窟、IV区34号窟毗邻,杜康大殿及塔群建在山丘中部,仓房、僧舍等建在山顶南端。其中皮央佛寺杜康殿西壁下部出现的手执盾牌的武士形象与古格王国都城遗址晚期殿堂内壁画有诸多相似之处,推测其绘制年代应大体相当,即可以初步定在16-17世纪前后。而且,从遗址山顶的高僧僧舍“拉布让孜”的宗教功能及总体布局关系来看,应与山腰杜康大殿为同时期建筑,从遗址中发掘出土的遗物早晚混杂,其年代下限也可能晚至16-17世纪前后。
2008年出版的《考古报告》是以上多次对东嘎·皮央调查后的总结性报告,其中有专门章节,分别对北壁、南壁、东壁及西壁做了描述,对四壁壁画分布情况及尊神图像特征都有说明,是重要的学术研究参考资料。但是通过比对我们的调查资料,发现有一些记录有误,比如,关于北壁(III壁),其中有这样描述:“北壁靠近西侧绘有一尊十四臂护法神像,下面有藏文题记‘吉多吉’,其周边另有数尊小像,其中两尊可辨识出像下方的藏文题记,一尊为‘白衮禅斯’,其像有舟形背光,背光上方有一大树,人物为一白鬓老翁形象,赤裸上身,胸前佩戴有长长的珠串,游戏坐于莲台。另一尊为‘马吉拉珍’,其像直身屈腿站立,一手执有头盖骨碗,足下踏有小鬼。”在上文描述所及之处均未发现尊神下方有相关的藏文题记。再如,描述中提到了南壁(即I壁)中间一层并列的三尊护法神像,并对每尊的图像特征进行描述,经比照识别,确认三尊为萨迦十三金法里的“大三红”组合(详见下文),并非护法神。此外,报告中配图4-63应为皮央IV区第32号窟南壁西段壁画局部,报告书中误称作南壁东段壁画局部,应为配图错误。最后在对西壁(II壁)的分述中,描述第三排绘有五尊女尊像,其实第一尊是财神黑瞻巴拉,不一而足。当然由于报告以客观描述居多,以提供原始资料为主,而对于尊神身份的认定不足,对于尊神神格的判断颇有不当,比较该报告与本文的论述即可明了,不一一注明。
2018年7月16日故宫博物院藏传佛教文物研究所到此调查,采集到较为完整的图片资料,并对石窟作了较为详细的测绘。本文即为此次调查的成果。
二、壁画图像解读
前文已经提到本文所讨论的护法殿(mGon khang)位于皮央石窟皮央村IV区,靠近山顶部,编号为皮央IV区第32号窟,当地藏族群众奉为“贡康洞”(即“护法殿”),沿用至今。
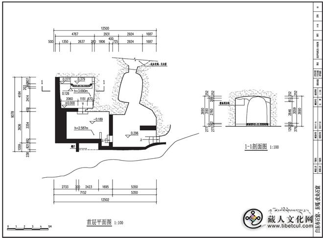
护法殿地理坐标为北纬31°40′59,东经79°47′45,海拔4220米,门朝向南181°。此窟的空间结构为:门口处有一短甬道,进深0.4米,宽1.151米,洞窟为平面近方形的单室窟,进深4.184米,面阔4.267米。顶部略近弧形,并不平整,最高为3.690米,平均高出四壁达30余厘米。窟室III壁前有一平台,高0.277米,呈倒“凸”字形结构,中间突出台面并不居中,而是更靠近IV壁,即左侧更宽,1.35米,右侧窄,只有0.28米。入口也偏IV壁,左侧墙宽2.020米,右侧宽0.672米‹1›。此石窟主尊的位置与入口均不在中轴线上,而是更向IV壁方向偏移〔图四〕。
〔图四〕护法殿绘测图
洞窟内四壁壁画保存基本完整,不过,顶部壁画全部残损,并伤及四壁顶部装饰带,另外I壁的入口右侧壁画有两位尊神形象受损。幸好,壁画局部损伤并不会影响我们对于壁画整体内容和风格的判断。
护法殿四壁的壁画内容大致可以分为四个主题。主题一:III壁的泥塑背光以及围绕着宝帐护法展开的各尊,其眷属还分布在II、IV壁的下部(编号:II壁30-35;III壁36,38-49;IV壁:59,64-67);主题二:菩萨与女尊像,包括I壁6-8,II壁26-29);主题三:祖师像,主要分布在I、II、IV壁上方,以及III壁的右上角(编号I壁2-5,II壁12-24,III壁37,IV壁50-58,60-63);主题四:护法及供养场景,集中于I壁门两侧(编号1,9-11,25),基本构成了一个神系完整的佛堂〔图五〕。以下按照四个主题逐次进行讨论。
〔图五〕 护法殿壁画分布图
(一)主题一:宝帐护法及其眷属
石窟的III壁为主壁〔图六〕。该壁现存一大泥塑背光,背光前的台面上保存有莲台,指示了原供主尊塑像的位置。由于雕塑已经不存,尊神身份不明。观察背光内,除了主尊像的位置以外,背光周边满绘红色火焰纹,左右两侧的火焰纹中分别绘有一对黑鸟、一对黑狗、一对黑豺以及一对黑人的形象。仅从出现在背光中的这些形象来判断,它的主尊应当是宝帐护法,大背光正上方原来还应绘一对金翅鸟,应当已经毁了,现在看到的背光一侧的黑鸟上部还有墨线绘一只飞翔的鸟和金翅鸟以及卷莲纹,很有可能是后补绘的。
〔图六〕 护法殿III壁
从现存背光残迹来看,背光顶端的金翅鸟以及两旁黑鸟、黑狗、黑豺以及黑人与书中所描述宝帐护法的倚仗相符,因此推论主尊为宝帐护法的可能性较大。
《宝生佛》卷二,叶260b有这样的描述:“在宝帐护法兄妹的右边是一只黑色的鸟,他的左边是一头黑色的狗,后边是一头黑色的狼,前面是一位黑色的人。”《宝生佛》卷二,叶268a描述:“这位宝帐护法,身色为黑色,生有一面二手,右手持砍刀,左手置于胸前,端装满血的碗。……整个身体冒着火焰。神灵的右边是黑马,左边是黑狗,背后是黑豺,前面是黑人。头顶上盘旋着一只大鹏,他是黑宝帐护法派出的使者。”
《梵天佛地》称:“主尊为宝帐护法,或确切而言,为吉祥金刚(大)黑天宝帐护法[dpal rdo rje nag po(chen po)gur gyi mgon po],黑色,二臂:右手持剑,左手当胸持盛满鲜血之颅器,两臂横抱犍稚(gandī)。在其周围各方有五种象征——佛殿墙上则示意性地表现——即右方有十万只展翅飞鸟,左方有十万只咆哮黑狗,后方飞奔十万只饿口大开的豺狼,前方有十万仰天哀叹的黑人,上方有十万只盘旋的金翅鸟(garuda)。”
主尊为宝帐护法证明这个殿被当地人称为“护法殿”是名副其实的,宝帐护法是萨迦派最为重要的护法神,壁画中确实充满了萨迦派的宗教色彩,而且II、III、IV壁的壁画内容中很大部分都是围绕着宝帐护法展开的。此石窟显然是阿里晚期萨迦派的道场之一。
宝帐护法(Gur gyi mgon po)有时被描述成“Lord of Tent”,图齐于1941年提出这个名字是藏文的错译。藏文中gur的意思是tent,而这个词对应的梵文原词为pañjara。图齐解释说,pañjara更准确的解释是囚笼(cage),有时亦指骨笼,即骨骼。在仪轨类书中,他被认作rDo rje nag po chen bo gur gyi mgon po或者Vajra mahākāla pañjara nātha,意为死神之王或骷髅之主,而绝非帐篷之主。用图齐的话说,他被认为是墓场之主(God of the Cemeteries)或者象征意义为摧毁由无明构成的囚笼(cage)式的皮相的主人。
〔图七〕 护法殿III壁局部
我们先从III壁开始〔图七〕。背光的右上角显然是以持嘎巴拉喜金刚(dGyes pa rdo rje thod pa can)(36)为中心,该尊为蓝色身,舞蹈姿,八面十六臂拥抱明妃。左上角是胜乐金刚(bDe mchog)(47),四面十二臂,主臂双手各持铃杵拥抱明妃。这两尊的出现令人想起有关宝帐护法起源的传说。根据仁钦桑波(Rin chen bzang po,958-1055年)的一个传记,大师曾奉阿里国王意希沃(Ye shes 'od)和他的侄子强秋沃(Byam chub 'od)之命去迎请一位特别的护法神。他得到上师指点,在菩提伽耶(Bodh gaya)的圣地金刚座北边的护法殿内亲证了宝帐护法,同时有喜金刚与胜乐金刚化现后进入了他的身体,通过这个加持,宝帐护法答应随他回西藏,永远护持佛法‹1›。有关仁钦桑布引进宝帐护法在西藏是一个非常普通的说法,我们注意的是其中四个要素:即宝帐护法、喜金刚、胜乐金刚和金刚座。在III壁中前三者作为主尊表现出来,恰好在喜金刚的左侧表现了一尊施触地印释迦牟尼佛(39),这种形象的释迦牟尼佛表现的正是在金刚座上成道的场景,这一切均明确暗示了仁钦桑波从印度菩提伽耶迎请宝帐护法的故事。
此外,萨迦派的密教思想也一直左右着壁画的布局。作为主壁的III壁,萨迦派无上瑜伽品的诸尊非常明确地得到了展示。比如,喜金刚以及左下角的那啰空行母(Nā ro mkha' spyod)(43)是不二续的本尊,胜乐金刚是母续的代表,在喜金刚下方的密集金刚(gSang 'dus)(41)、红阎摩锐(gShed dmar)(42)属于父续。这是宣示萨迦派密教思想的设计之一。
III壁和IV壁另有五位重要的宝帐护法眷属:左侧喜金刚之下的婆罗门大黑天(Zhal pram gzugs)(38)形象为须发皆白的老者,禅修带从左腰至右腿,左手持颅碗于胸前,右手持鹿角号。此尊的来源是,当时,西藏年译师(Nyen Lo tsa ba)在受智足(Jñānapāda)传承的密集金刚灌顶时,空行母给他授一种非常特别的婆罗门大黑天灌顶。这种大黑天其实就是四面大黑天的一种变化身,一直作为萨迦派的重要护法神。伏魔金刚手(Phyag rdor 'byung po 'dul byed gsar ma)(40),蓝色身,一面四臂,主臂结降魔印是其主要特征,其余两臂持羂索和金刚杵;持钺刀护法(mGon po gri gug dpa' gcig)(44),蓝色身,一面二臂,左手持颅碗,右手持钺刀,右展姿,踏尸体;独髻母(Ral gcig ma)(48),蓝色身,一面二臂,面有三眼,忿怒像,露獠牙,两手捧宝瓶于胸前。IV壁的吉祥天母化身之一的欲界自在母('Dod khams dbang phyug ma)(59)一面四臂三目,忿怒像,右手持嘎巴拉碗,左手持旗枪,余右手上举剑,左手持喀章嘎。
这五尊是宝帐护法两侧最常出现的胁侍成员,从现存的实物资料来看,组合形式有很多种,但几乎不出此五尊之范围。
例如,这幅14世纪宝帐护法唐卡来自于西藏中部,萨迦传承,主尊周围四位伴神为伏魔金刚手、持钺刀护法、独髻母和欲界自在吉祥天母 〔图八〕。
〔图八〕宝帐护法(西藏中部14世纪上半叶)(棉布设色 纵76.5厘米 宽59厘米 私人收藏)
另外一幅很可能来自于夏鲁寺,14世纪下半叶的宝帐护法的唐卡却只有三尊胁侍,即独髻母,持钺刀护法及吉祥天母,另外一尊的位置被持嘎巴拉喜金刚所占据 〔图九〕。
〔图九〕宝帐护法(西藏中部 14世纪下半叶)(棉布设色 纵31.75厘米 宽24.76厘米 纽约鲁宾博物馆藏)
鲁宾博物馆收藏的18世纪的宝帐护法唐卡中,右侧独髻母、吉祥天母;左侧为伏魔金刚手以及婆罗门大黑天 〔图十〕。文中指出婆罗门大黑天出现在西藏绘画的时间最早始于15世纪初期,这里他替代了持钺刀护法。
〔图十〕宝帐护法(西藏中部 16世纪下半叶)(棉布设色 纵60.9厘米 宽40.6厘米 Collection of Shelley and Donald Rubin )
从上述诸例亦可看出,护法殿的主尊毫无疑问是宝帐护法,其胁侍的配置成员相对固定但有组合变化。最常见的组合是伏魔金刚手、持钺刀护法、独髻母以及吉祥天母。其中比较稳定出现的尊神是独髻母、吉祥天母以及伏魔金刚手,而持钺刀护法在后来逐渐被婆罗门大黑天取代。有时财神、尸陀林主还会作为主要的配尊出现在主尊周围。
〔图十一〕 白色日月兄妹护法
III壁独髻母之下,是一尊萨迦派的护法神,叫“白色日月兄妹护法”(dKar mo zla nyi lcam dral)〔图十一〕(49):一面二臂,白色身,着世俗装长袍,衣领为红色,站立姿十分独特,双脚脚尖朝向身体两侧方向,戴长日月珠鬘,左手和右手持类似于四个红陶酒杯相叠形式的物品,右手可能是持须弥山,左手持四大部洲,常与其兄摩王勇士(bDud rgyal dpa' bo thod 'phreng can)一同出现。壁画中只表现了白色日月兄妹护法一尊。此尊形象实例发现很少,在阿里地区似是首次看到。
另外,宝帐护法作为本石窟主尊还体现在其眷属同时出现在II、III、IV壁上。传统有“宝帐护法八神”(Gur gyi mgon po lha brgyad)的说法,也称为“众护法部主金刚宝帐”(bsDan srung kun gyi sde dpon rdo rje gur)。除了宝帐护法以外,其余七位眷属是独髻母、欲界自在母、黑药叉(Nag po gnod sbyin)、黑药叉女(Nag mo gnod sbyin)、凶猛阎摩门跋陀罗(gShin rje ma rungs pa mon bu pu tra)、恶魔门布跋特(bDud ma rungs pa mon bu bha ta)、门莫金色快刀女(Mon mo gser gyi spu gri ma)。
有关八众及其眷属的尊名与图像特征,图齐、内贝斯基和Jeff Watt都有过较为详细的描述,将其与本窟壁画相比较,互有出入。目前根据三个资料推测其成员如[表一]:
[表一]“药叉家族五众”图像特征比较
根据图齐的描述,独髻母生出欲界自在母,再由二者生出黑药叉〔图十二〕与黑药叉女。由两位药叉再生出凶猛的尸身,即凶猛阎摩门跋陀罗、恶魔门布跋特和门莫金色快刀女〔图十三〕。《西藏的神灵与鬼怪》的资料却提供了另外一种说法:独髻母生欲界自在母,欲界自在母又生出两位药叉,再由二者生出两位布查(跋陀罗)兄弟与妹妹,作者还专门指出,三者与图齐所举的三位凶猛尸身藏文名不同,但身份是一致的。另外,三位尸身还有自己的随从,图齐的资料说,尸身右侧一百名英雄领队,左侧一百名僧人、罗汉以及有一百名黑僧(ban dhe),前方有一百名黑女眷。《西藏的神灵与鬼怪》的描述是右侧一百名武士,左侧一百名比丘,后方为一百名巫师,前方为一百名黑女人。二者也不尽相同。
〔图十二〕III壁下方宝帐护法眷属黑药叉
〔图十三〕IV壁诸尊,下方是宝帐护法眷属,由左至右分别是:欲界自在母(59)、 门莫金色快刀女(64)、黑药叉女(65)、男女尸陀林主 66-67)
Jeff Watt对武士、黑女人及比丘的描述与前二者都较一致,但三者对于巫师或者黑僧(Ban dhe)的描述出入很大,壁画中他头戴红色帽子,也未见文献记载,下面以Jeff Watt的描述为参照,比较壁画中外围四眷属特征如[表二]:
[表二] 外围四眷属图像特征对照表
最后我们不能忘记IV壁的下方还表现了男女尸陀林主(Dur khrod bdag po)(66、67)。虽然它们并没有专门的文献记载它们属于宝帐护法的眷属,但是由于宝帐护法有死神守护者的角色,所以它们的出现也是理所当然。
(二)主题二:菩萨与女尊
本部分将要讨论的内容包括II壁的4位尊神,此四尊位于II壁中间列,依次排开〔图十四〕。
〔图十四〕 II壁诸尊,下方是宝帐护法眷属,由左至右分别是:武士(30)、黑女人(31)、黑僧/巫师(32)、 比丘(33)、 恶魔门布跋特(34)、凶猛阎摩门跋陀罗(35)
最左边一女尊(26),身色黄,一面二臂,左手置胸前结说法印,右手结与愿印置右腿前,全跏趺坐。未见持物,仅依据手势很难判明身份。
右一女尊(27),身色黄,三面六臂,正面黄,左面红,右面白,面有三眼,左腿屈,右腿跪,手上持物均未表现,腰间围着树叶做成的短裙,应为叶衣佛母(Lo ma gyon ma)。
再右是一菩萨像(28),一面二臂,身色绿,左手持金刚铃,右手持十字交杵于胸前,结全跏趺坐,应为摧碎金刚(rDo rje rnam 'joms)。
最右一位女尊(29),身色白,三面八臂,面上各具三眼,正二手分别持十字交杵与羂索,右上手托无量光佛,持箭,施与愿印;左上手施无畏印,持弓、宝瓶,为尊胜佛母(gTsug tor rnam rgyal ma)。
〔图十五〕 II壁4位菩萨与女尊组合,由左至右分别是:摩利支天(26)、叶衣佛母(27)、摧碎金刚(28)、尊胜佛母(29)
上述四尊中〔图十五〕,叶衣佛母是五守护佛母(或五陀罗尼母)中的一尊,与抵御毒伤害有关,有很多图像例子证明她也可以作为主尊独立供奉。摧碎金刚,也写作催碎金刚或摧破金刚,是金刚手菩萨的另一个尊身。尊胜佛母一直作为长寿类尊神出现对于解读这个组合有很重要的象征意义。
在喜马拉雅艺术网站上我们找到两幅密集金刚的唐卡,一幅是15世纪布达拉宫收藏的密集不动金刚(gSang 'dus mi bskyod pa),主尊下面即有摩利支天('Od zer can ma)、顶髻白伞盖佛母(gTsug tor gdugs dkar)以及叶衣佛母的组合 〔图十六〕。另一幅18世纪的密集金刚唐卡,主尊下方出现了摩利支天、尊胜佛母以及叶衣佛母组合 〔图十七〕。两幅唐卡下方的尊神组合中,均出现了叶衣佛母与摩利支天,虽尊胜佛母与大白伞盖佛母不同,但二者的尊格极为接近。因此,我们有理由推测,壁画中的黄色身女尊(26)极有可能是摩利支天,只是持物减省不表现出来,且她的坐骑猪也省略了。第一幅唐卡中,摩利支天的猪牵引车也被省略。
〔图十六〕密集金刚(汉地 15世纪)(刺绣 纵75厘米 宽61厘米 西藏布达拉宫藏)
〔图十七〕密集金刚(西藏 18世纪)(布本彩绘 纵63厘米 宽42.5厘米 私人收藏)
显然,这四尊的组合有驱魔、祛病、祈寿和守护的意义,这也是这个石窟中壁画表现小主题之一。
I壁西侧中间层有4尊尊像,除靠近门一端一尊已毁,其余三尊可识别为萨迦派十三金法 “大三红”组合:左侧是欲帝明王('Dod rgyal dmar po)(6),一面二臂,红色身,左手结期克印持羂索,右手持钩,右展姿;中间为十二臂红色象鼻天(Tshogs bdag dmar chen)(7),象首,一面十二臂,主臂持嘎巴拉碗和金刚杵,余左臂分持木棒、弓、天杖、盛满人肉的嘎巴拉碗、盾,余右臂分持斧、箭、钩、剑、矛,舞蹈姿踏在一只褐色吐宝鼠上;右侧是智行佛母(Kurukullā)(8),一面四臂,主臂分持弓与箭,其余两臂持钩与花,舞蹈姿踏一尸体上 〔图十八〕。
〔图十八〕 I壁诸尊,西侧中间为萨迦派“大三红”组合:从左至右分别是欲帝明王(6)、十二臂象鼻天(7)、智行佛母(8)
“大三红”组合在贡嘎曲德寺二层护法殿南壁也有出现。护法殿南壁绘财神主题,与北壁多闻天王和八大马王的主题相呼应。主尊造像虽已不存,但根据《贡嘎南杰传》记载应为红色十二臂象鼻天。配尊分别有咕噜咕咧智行佛母、红色欲王、红财续母、红色双身瞻巴拉、黄瞻巴拉等尊神。
而在护法殿I壁也出现多闻天王以及八大马王、黄瞻巴拉的组合,将在下文作进一步描述。(未完待续)
作者简介:王露,中国社会科学院研究生院研究生;罗文华,故宫博物院宫廷部
原刊于《故宮博物院院刊》2019年第12期・ 第212期,注释略,原文版权归作者和原单位所有。
